AKTUALNOŚCI

Mieszkańcy

Nowe mieszkania w Gminie Skoroszyce coraz bliżej !

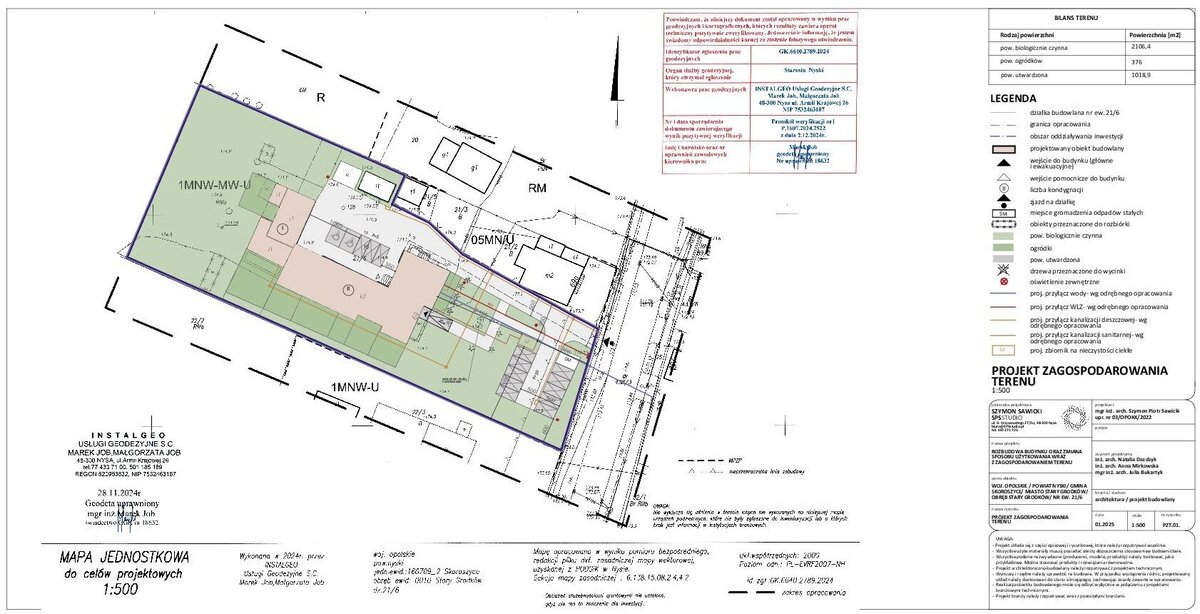
Trwają prace projektowe związane z realizacją zadania polegającego na rozbudowie budynku byłej szkoły w Starym Grodkowie oraz zmianą sposobu użytkowania i zagospodarowaniem terenu. Zadanie to jest realizowane przez Projekt Municypalny Nysa SIM Sp. z o. o., którego udziałowcem jest Gmina Skoroszyce.

Poniżej przedstawiam już pierwsze bardziej szczegółowe koncepcyjne rozwiązania projektowe planowanych do utworzenia mieszkań.

Dzięki pozyskanym środkom finansowym , pochodzącym z Rządowego Funduszu Rozwoju Mieszkalnictwa powstaną w ramach tego zadania nowe mieszkania czynszowe z możliwością wykupu po 15 latach.

Mieszkania budowane w tej formule przeznaczone są dla osób i rodzin nieposiadających własnego mieszkania, które dysponują środkami na regularne opłacanie czynszu, jednak ich dochody są za niskie na zaciągnięcie kredytu hipotecznego na mieszkanie.

Gmina Skoroszyce

pow. nyski, woj. opolskie, 

NIP: 753-24-06-077  

REGON: 531412941  

KOD TERYT: 1607092

ug[at]skoroszyce.pl

ePuap: /ftbde30497/ugskoroszyce

konto bankowe